| • | Les lignes de cote parallèles mesurent la distance réelle entre deux points nodaux. |
| • | Les lignes de cote verticales ou horizontales mesurent la distance verticale (le long de l’axe y) ou horizontale (le long de l’axe x) entre deux points nodaux. |
| • | Les lignes de cote angulaires mesurent les angles. |
| • | Les lignes de cote de segment mesurent la distance linéaire entre les points nodaux d’extrémité d’un segment ou la distance linéaire entre les deux points nodaux les plus éloignés dans plusieurs segments. Les lignes de cote de segment peuvent également mesurer des segments successifs sélectionnés. |
Lignes de cote de gauche à droite : angulaires, horizontales et verticales
Pour pouvoir utiliser les lignes de cote avec précision, il convient de les magnétiser à des points nodaux spécifiques sur les objets. Pour plus d’informations sur la magnétisation et les modes de magnétisation, reportez-vous à la section Magnétisation d’objets.
| Pour tracer une ligne de cote verticale, horizontale ou oblique |
|
| 1 . | Effectuez l’une des opérations suivantes : |
| • | Pour tracer une ligne de cote parallèle, cliquez sur l’outil Cote parallèle |
| • | Pour tracer une ligne de cote verticale ou horizontale, cliquez sur l’outil Cote horizontale ou verticale |
| 2 . | Cliquez pour placer le point de début et faites glisser le pointeur jusqu’à l’endroit où vous souhaitez placer le point de fin de la ligne de cote. |
| 3 . | Déplacez le pointeur pour positionner la ligne de cote et cliquez pour mettre en place le texte de cote. |
| Par défaut, le texte de cote est centré sur la ligne de cote. |
| Pour tracer une ligne de cote angulaire |
|
| 1 . | Dans la boîte à outils, cliquez sur la flèche située dans l’angle inférieur droit du bouton de l’outil Cote parallèle pour ouvrir le menu contextuel Outils Cote, puis cliquez sur l’outil Cote angulaire |
| 2 . | Cliquez à l’endroit où vous souhaitez que les deux lignes de mesure de l’angle se croisent, puis faites glisser le pointeur jusqu’à l’endroit où vous souhaitez que la première ligne se termine. |
| 3 . | Cliquez à l’endroit où vous souhaitez que la seconde ligne se termine. |
| 4 . | Cliquez à l’endroit où vous souhaitez que le libellé de l’angle apparaisse. |
| Pour tracer une ligne de cote de segment |
|
| 1 . | Dans la boîte à outils, cliquez sur la flèche située dans l’angle inférieur droit du bouton de l’outil Cote parallèle pour ouvrir le menu contextuel Outils Cote, puis cliquez sur l’outil Cote de segment |
| 2 . | Cliquez sur le segment que vous souhaitez mesurer. |
| 3 . | Placez le pointeur à l’endroit où vous souhaitez positionner la ligne de cote et cliquez sur l’emplacement où vous souhaitez placer le texte de cote. |
|
Cliquez sur l’outil Cote de segment
|
|
|
Cliquez sur le bouton Cotation successive automatique
|
| Pour définir l’affichage des unités de cote |
|
| 1 . | Sélectionnez une ligne de cote. |
| 2 . | Dans la barre de propriétés, choisissez des options dans les zones de liste suivantes : |
| • | Style de cote : permet de choisir des unités de cote fractionnelles, décimales ou standard. |
| • | Précision des cotes : permet de choisir le niveau de précision des mesures. |
| • | Unités de cote : permet de choisir une unité de mesure. |
|
Cliquez sur le bouton Afficher les unités
|
|
|
Cliquez sur le bouton Position du texte
|
|
|
Sélectionnez le texte de cote à l’aide de l’outil Sélecteur
|
|
|
Entrez un préfixe ou un suffixe dans la zone Préfixe ou Suffixe de la barre de propriétés.
|
|
|
Cliquez sur le bouton Zéro non significatif
|
|
|
Cliquez sur le bouton Cotation dynamique
|
| Pour définir les propriétés par défaut des nouvelles lignes de cote |
|
| 1 . | Dans la boîte à outils, cliquez deux fois sur le bouton de l’outil Cote parallèle |
| La page de l’outil Cote de la boîte de dialogue Options apparaît. |
| 2 . | Spécifiez le style, la précision et les unités de cote, ainsi que le préfixe et le suffixe du texte de cote. |
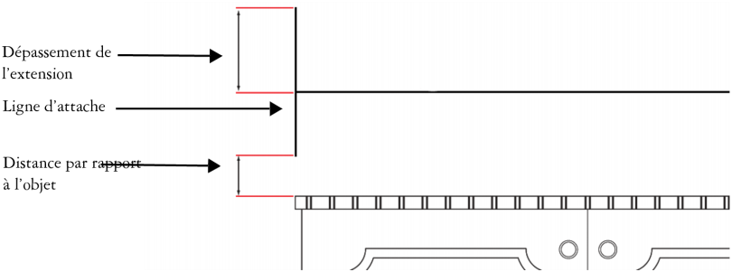
| Pour personnaliser les lignes d’attache |
|
| 1 . | Sélectionnez une ligne de cote. |
| 2 . | Dans la barre de propriétés, cliquez sur le bouton Options de ligne d’attache |
| 3 . | Pour indiquer la distance entre les lignes d’attache et l’objet, cochez la case Distance à partir de l’objet et entrez une valeur dans la zone Distance. |
| 4 . | Pour indiquer la longueur du dépassement de l’extension, cochez la case Dépassement de l’extension et entrez une valeur dans la zone Distance. |
Certaines fonctions décrites dans l’Aide ne sont pas incluses dans cette version du produit et sont disponibles uniquement dans CorelDRAW Graphics Suite 2018.
Copyright 2018 Corel Corporation. Tous droits réservés.